两套小户型合拼成170平住宅,原木+简约白设计,令人超爱!

生活,无非是加法与减法的平衡,家亦是如此,把家的空间留给阳光与清风,是繁杂生活中的一剂心灵良药。




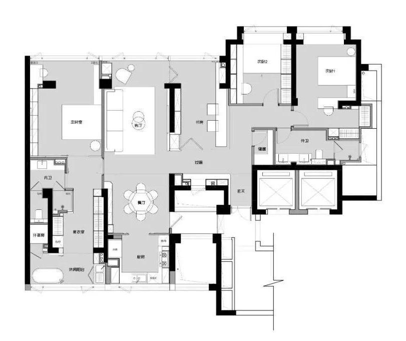
本案原是两套小户型,将之调整后并成一套平层户型设计,两套户型的合并打破了原有格局的功能性,需对空间布局进行调整优化,将空间化零为整,此所谓加法。






户型融合的同时,做很多的取舍,通过对书房隔墙形式的选择,大片留白空间的造型,在户型立面结构,视觉感受上做减法,更好地提升整体户型的完整性及美观性。




















生活,无非是加法与减法的平衡,家亦是如此,把家的空间留给阳光与清风,是繁杂生活中的一剂心灵良药。




本案原是两套小户型,将之调整后并成一套平层户型设计,两套户型的合并打破了原有格局的功能性,需对空间布局进行调整优化,将空间化零为整,此所谓加法。






户型融合的同时,做很多的取舍,通过对书房隔墙形式的选择,大片留白空间的造型,在户型立面结构,视觉感受上做减法,更好地提升整体户型的完整性及美观性。



















Powered by 延安党建云平台app下载 @2013-2022 RSS地图 HTML地图